








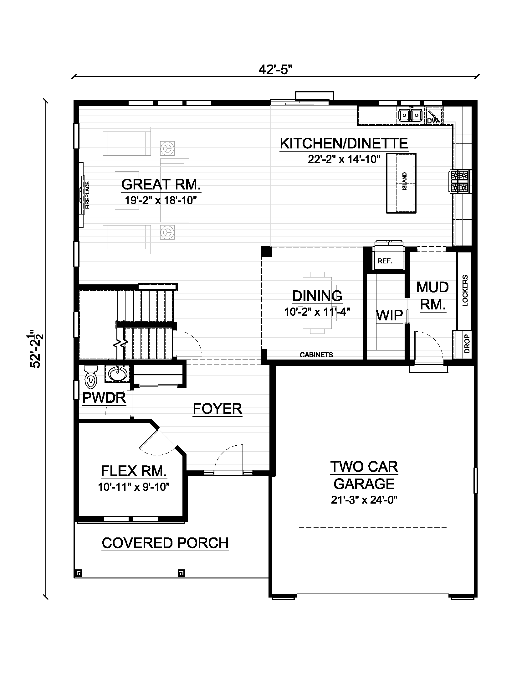
Welcome home to The Jude by Stepping Stone Homes, the Milwaukee Area’s premier award-winning home builder. This open floor plan features 4 Bedrooms, 2.5 Bathrooms, and a 2 car garage at minimum. The kitchen comes with quartz countertops, soft close doors, and the signature Stepping Stone appliance package. We equip our homes with Smart Technology and quality craftsmanship throughout such as 2×6 constructed exterior walls, solid core doors, and active radon mitigation system. The basement includes an egress window and is plumbed for a bathroom addition. Our faithful adherence to the Focus on Energy program provides each of our homes with an Energy-Efficient Certificate proclaiming that our homes are 30% more energy efficient than the current Wisconsin code.
Help is just a stone’s throw away! Give our Sales Team a call or send us an email and we will get back to you within one business day.
Help is just a stone’s throw away! Give our Sales Team a call or send us an email and we will get back to you within one business day.
© 2022 All Rights Reserved.
to save your favourite homes and more
Enter your email address and we will send you a link to change your password.